VÅRE BOLIGPROSJEKTER
FERDIGSTILTE PROSJEKTER
HVORFOR CONCEPTOR BOLIG?
SELSKAPET
KONTAKT
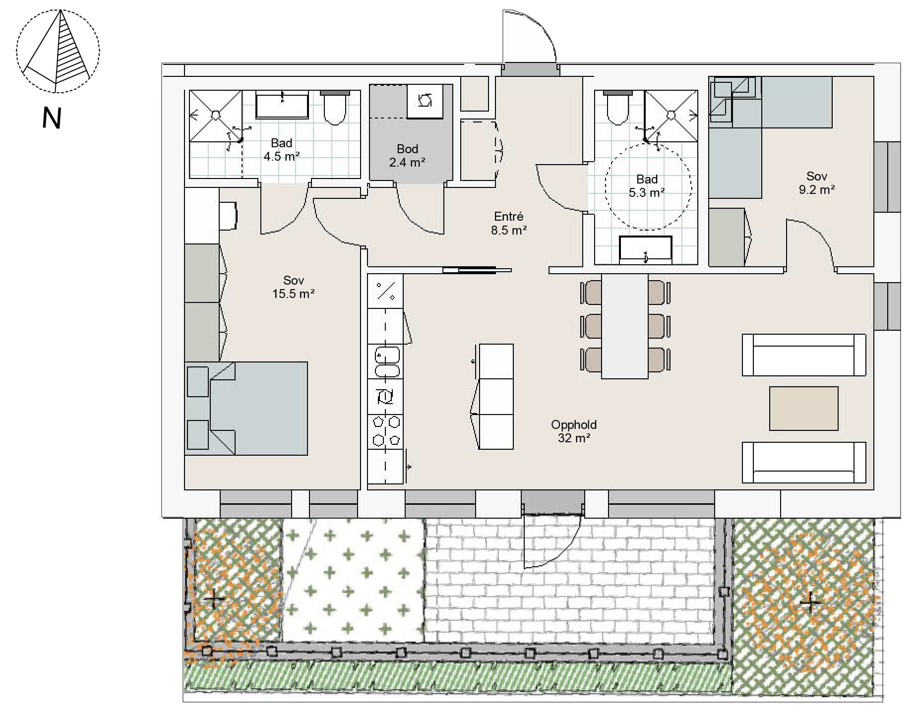
A101
Meld interesse
Status
Solgt
ID
A101
Innskudd
Soverom
2
BRA kvm.
83
P-rom kvm.
83
Andel fellesgjeld
2 450 000
Totalpris
4 900 000
Omkostninger
Totalpris ink. omkost.
Fellesutgifter per mnd
6 060
Type
Andelsleilighet
Etasjer
1.
P-plasser inkl.
Ja
Meld interesse for enheten
Fyll inn navn
Fyll inn telefonnummer
Fyll inn e-post
Jeg ønsker å bli kontaktet i samtykke med denne
personvernerklæringen
All Projects News Subscription
Send
Powered by Plyo
Tilbake til Hus A